

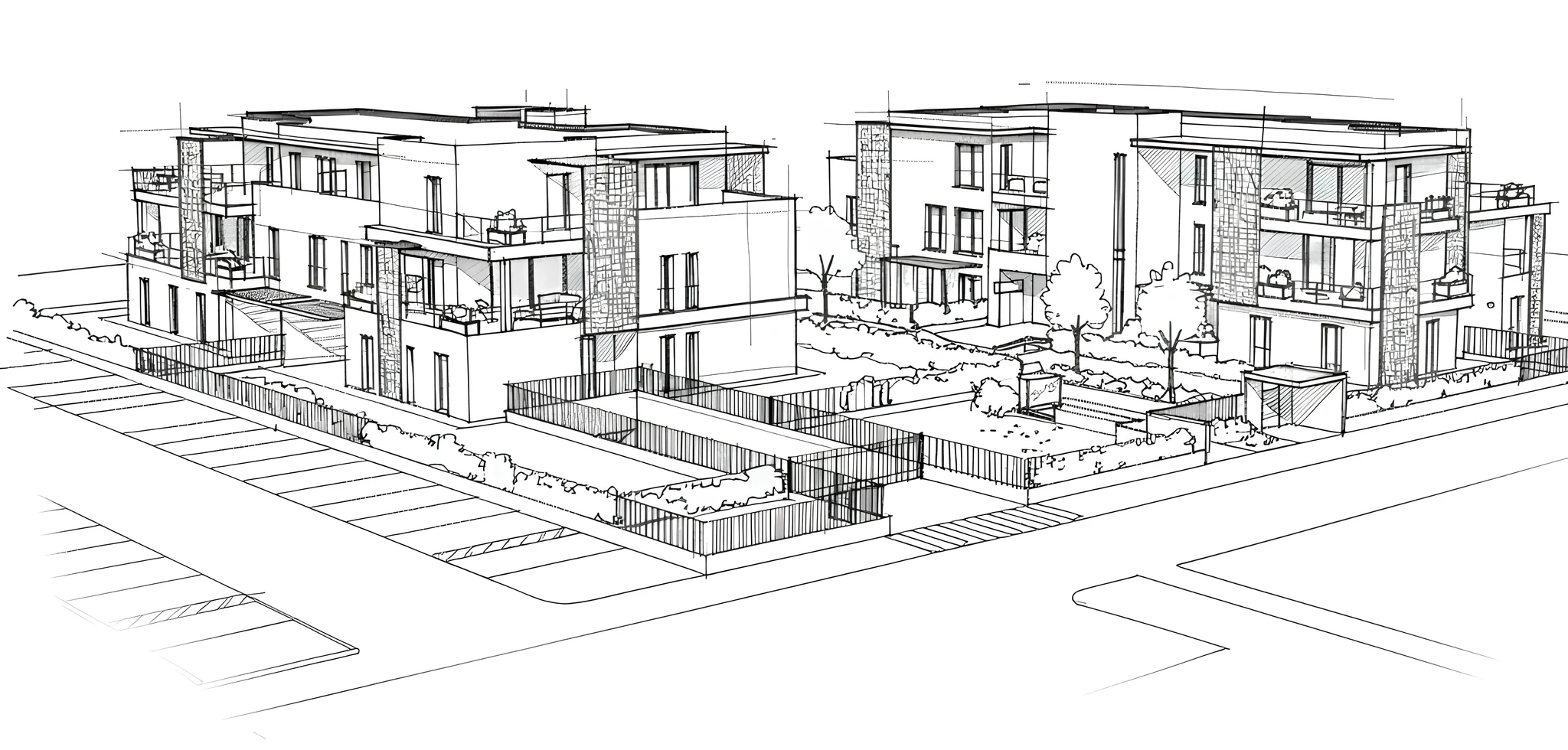
Un complesso residenziale pensato per coniugare estetica e funzionalità: volumi moderni, materiali di pregio e soluzioni tecnologiche avanzate contribuiscono a un ambiente esclusivo, raffinato e perfettamente integrato nel paesaggio circostante
Tra tranquillità comfort e collegamenti strategici
Treviolo è una delle località più apprezzate della provincia di Bergamo, grazie alla sua perfetta combinazione di tranquillità residenziale e vicinanza ai principali servizi.
Immersa nel verde, ma a pochi minuti dal centro di Bergamo, offre un equilibrio ideale per chi desidera una qualità di vita superiore, senza rinunciare alla praticità quotidiana.
Abitare qui significa avere tutto a portata di mano:
– Supermercati, scuole, farmacie e centri sportivi raggiungibili in pochi minuti
– Piste ciclabili e aree verdi perfette per il tempo libero
– Collegamenti rapidi con la SS671, l’autostrada A4 Milano-Venezia e l’aeroporto di Orio al Serio
– Fermate bus e servizi di trasporto verso Bergamo e i comuni limitrofi
– Ospedale Papa Giovanni XXIII
La posizione strategica di Treviolo rende questa iniziativa immobiliare la scelta perfetta per famiglie, professionisti e chi cerca un investimento sicuro nel cuore della provincia bergamasca.
Benessere, efficienza e rispetto per l’ambiente
La nuova iniziativa immobiliare a Treviolo nasce con un obiettivo chiaro: creare abitazioni belle, confortevoli e sostenibili, pensate per migliorare la qualità della vita e ridurre l’impatto ambientale.
Grazie a tecnologie costruttive di ultima generazione, materiali ecosostenibili e sistemi di gestione intelligente la tua nuova casa a Treviolo è un investimento che guarda al futuro garantendo comfort termico e benessere abitativo tutto l’anno.


Il fitness e la cura di sé non sono mai stati così pratici e sostenibili. La palestra interna a servizio delle residenze consente di praticare sport e dedicarsi al proprio benessere in tutta comodità riducendo i costi, nel pieno rispetto del pianeta e delle risorse; i consumi delle attrezzature dell’area fitness saranno infatti assorbiti dalle più avanzate tecnologie come: impianto fotovoltaico, batterie di accumulo






Sistema che regola l’umidità degli ambienti, garantendo un clima confortevole e salubre tutto l’anno



Ambiente fitness riservato ai residenti, per allenarsi comodamente a casa e mantenere il proprio benessere quotidiano

Spazio esterno condiviso pensato per momenti di relax e convivialità, perfetto per vivere all’aperto con famiglia e amici

Area residenziale silenziosa e riservata, ideale per vivere in serenità

Ogni appartamento include un box doppio, per garantire praticità, sicurezza e ampi spazi per auto e deposito, offrendo un comfort superiore













